Welcome to Unit 65 at Riverlands Lifestyle Village a beautifully renovated home in one of Noosa's most affordable and refreshingly transparent Over-50s communities.
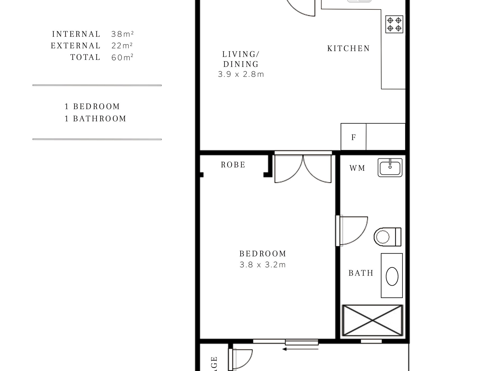
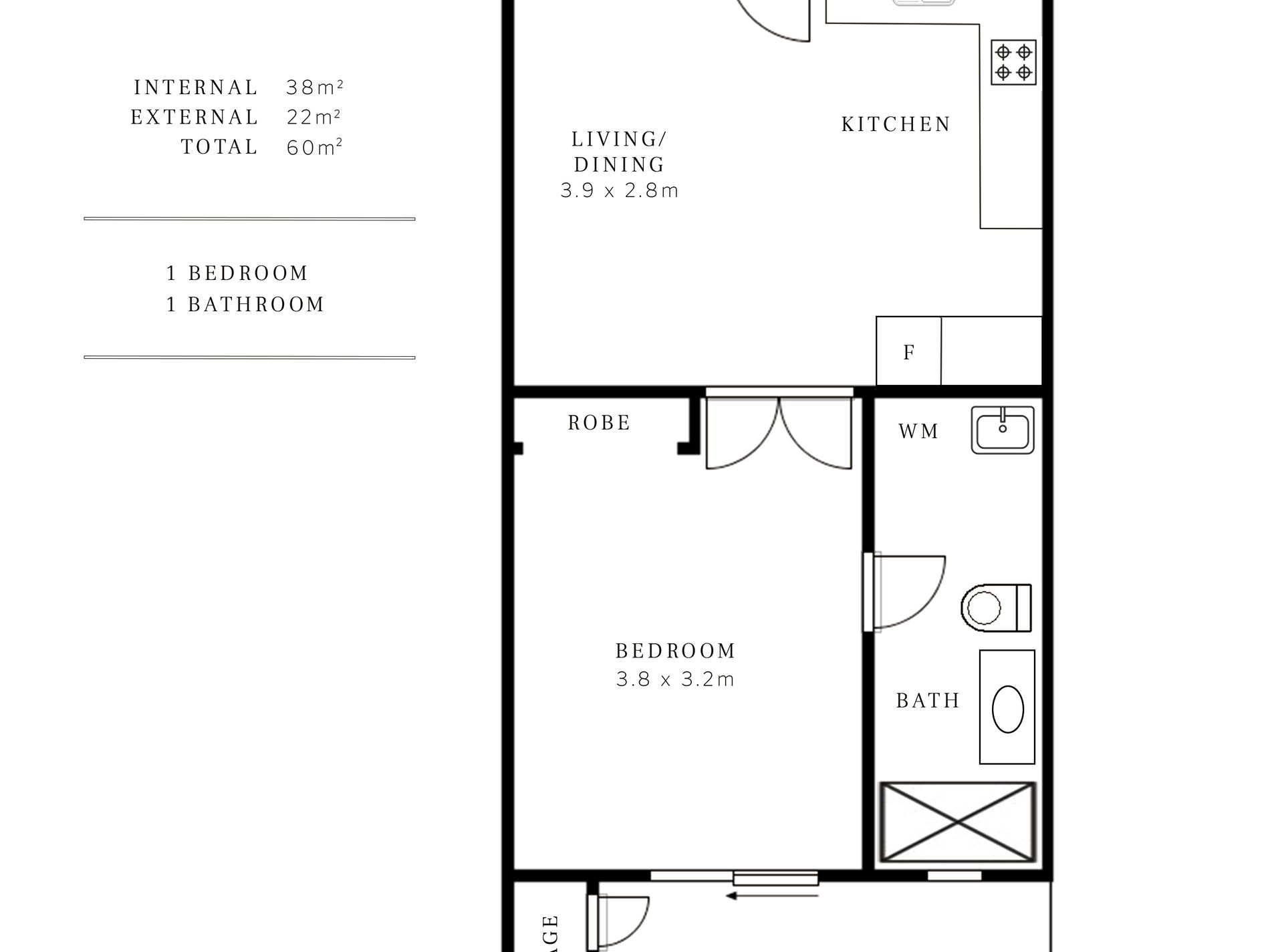
From the moment you step inside, you'll feel at ease. The open-plan living, dining and kitchen area is filled with natural light, creating a relaxed coastal ambience perfect for everyday living. The brand-new kitchen offers generous bench space, quality finishes and ample storage - practical, stylish and ready for entertaining.
The generously sized bedroom includes built-in robes, a private ensuite, and a cleverly positioned internal laundry for everyday convenience. Every inch of this home has been tastefully updated with premium finishes, meaning there is absolutely nothing to do - simply move in and start enjoying the lifestyle.
Outdoors, the private rear patio has been completely refreshed and includes a secure lockable storage area ideal for bikes, tools or hobbies. Low-maintenance living at its best.
What truly sets Riverlands apart is its freehold ownership, a rare offering in the retirement market. There are no entry or exit fees, no site rent, and no hidden management charges. Just a straightforward and affordable body corporate levy (approximately $3,500 last year), plus standard council rates and water. It's simple, transparent, and financially smart.
Unlike "Land Lease" properties which cannot be rented, because Riverlands is freehold it is also suitable for investors looking for a rental (to Over-50s) investment, or, it would suit someone nearing retirement looking to secure a future home with rental potential until ready.
The lifestyle here is equally impressive. A vibrant community atmosphere centres around the spacious Community Centre, complete with a full kitchen for entertaining, regular social activities, library, gym and a beautiful swimming pool. Public transport is right at the entrance, providing easy access to Noosa, Tewantin, Maroochydore and Nambour.
Small pets are considered upon application and Body Corporate approval.
Unit 65 offers exceptional value, genuine ownership, and a welcoming community all in a location that keeps you connected to everything the Noosa region has to offer.
Move straight in. Settle right in. Feel right at home.
Property Highlights:
• Freehold property purchase - you own the home and the land.
• No entry fees and no exit fees.
• No site rent or ongoing management charges.
• Suit investor or owner occupier.
• Fully renovated throughout - move-in ready.
• Light-filled open-plan living and dining.
• Brand-new kitchen with ample bench space and storage.
• Spacious bedroom with built-in robes and private ensuite.
• Internal laundry for added convenience.
• Private rear patio with secure lockable storage.
• Low-maintenance interiors and outdoor spaces.
• Large community centre with pool, library, gym & an active social club.

















































